Molesworth Place, Cookstown

For Sale / To Let

54.646267421662, -6.743367299771

Specifications

Full address:

Molesworth Place
Cookstown
BT80 8NX
United Kingdom

Listed Price:
Contact agent for details
Total Size (ft²)
50,257
Total Size (m²)
4,671
Property Type:
Office
Property Status:
Ready for Fit-out
Annual rental (per ft²):
£8.00
Rates (per ft²):
Contact agent for details
Service Charge (per ft²):
Contact agent for details

Description

Added
15/02/22

For Sale / To Let: Prime Landmark Office Accommodation Accommodation

Accommodation will be finished to Grade A Specification to include:  Raised access floors  Air handling / conditioning  Plastered / Painted Walls  Suspended ceiling with recessed lighting  Communal WCs finished to a high standard  Passenger lift to all floors  24 Hour security with comprehensive CCTV coverage  On-site car parking

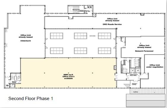
Phase 1 - First Floor 18,270 sq ft.  Second Floor 6,803 sq ft

Phase 2 - 19,589sq ft

Phase 3 - 5,595 sq ft

Car Parking

on-site car parking

Disclaimer

The information contained in this website is for general information purposes only. The information is sourced from third parties and is subject to change without notice. While we endeavour to keep the information up to date and correct, we make no representations or warranties of any kind, express or implied, about the completeness, accuracy, reliability, suitability or availability with respect to the website or the information, products, services, or related graphics contained on the website for any purpose. Any reliance you place on such information is therefore strictly at your own risk.

Similar properties

One Bankmore

One Bankmore, 14 Dublin Road, Belfast

To Let
Total Size (ft²)
42,250
Agent(s)
  • Avison Young
  • Cushman & Wakefield
Property Type:
Office
Property Status:
Under Construction / Refurbishment
9 Lanyon Place

9 Lanyon Place, Belfast

To Let
Total Size (ft²)
148,900
Agent(s)
  • Lisney
  • McConnell Chartered Surveyors
Property Type:
Office
Property Status:
Ready for Fit-out
State Building

4th Floor, State Building, 2 Arthur Place, Belfast

To Let
Total Size (ft²)
3,948
Agent(s)
  • TDK Commercial Property Consultants
Property Type:
Office
Linenhall 1

The Linenhall, Linenhall Street, Belfast

To Let
Total Size (ft²)
73,000
Agent(s)
  • Killultagh
Property Type:
Office
Landmark 1

Landmark House, 5 Cromac Quay, Gasworks, Belfast

To Let
Total Size (ft²)
5,250
Agent(s)
  • Lisney
Property Type:
Office
9 Donegall St Place 1

First Floor, 9 Donegall Street Place, Belfast

To Let
Total Size (ft²)
445
Agent(s)
  • McConnell Chartered Surveyors
Property Type:
Office
Metro 1

Metro Building, 6-9 Donegall Square South, Belfast

To Let
Total Size (ft²)
5,138
Agent(s)
  • McConnell Chartered Surveyors
Property Type:
Office
8th floor Lanyon 1

8th Floor West Tower Lanyon Plaza, Lanyon Place, Belfast

To Let
Total Size (ft²)
5,705
Agent(s)
  • O'Connor Kennedy Turtle (Belfast)
Property Type:
Office
sessia house 1

Sessia House, First Floor 61-67 Donegall Street, Belfast

To Let
Total Size (ft²)
2,282
Agent(s)
  • McConnell Chartered Surveyors
Property Type:
Office
Paper Exchange 1

The Paper Exchange, 57-63 Chichester Street, Belfast

To Let
Total Size (ft²)
155,133
Agent(s)
  • Colliers International
  • McConnell Chartered Surveyors
Property Type:
Office
Property Status:
Ready for Fit-out