The Mercantile, 5 Donegall Square South, Belfast

To Let

54.59586001681, -5.9292800193323

Specifications

Full address:

The Mercantile
5 Donegall Square South
Belfast
BT1 5EB
United Kingdom

Total Size (ft²)
73,000
Total Size (m²)
6,784
Property Type:
Office
Property Status:
Under Construction / Refurbishment
Annual rental (per ft²):
Contact agent for details
Rates (per ft²):
Contact agent for details
Service Charge (per ft²):
Contact agent for details

Description

Added
27/01/22

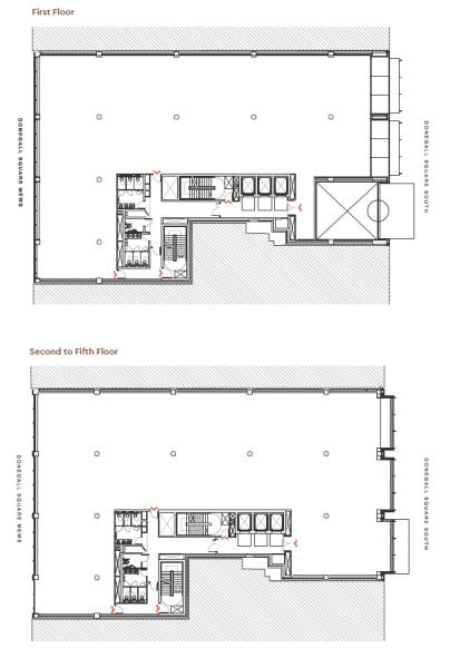
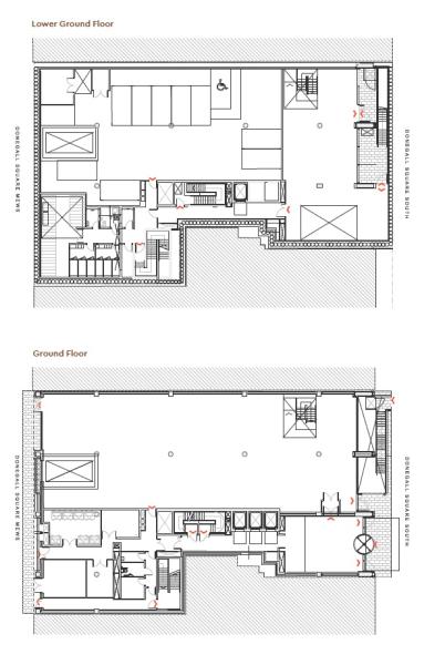
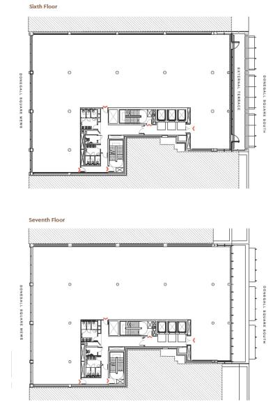
To Let: New City Centre Office Development. The Mercantile is an exemplar of modern grade A office space, occupying Belfast’s premier city-centre location overlooking the City Hall. When completed in Q3 2020, it will offer flexible Grade A office space over 8 upper floors with typical floor plates of c. 8,500 sq ft NIA, premier restaurant/leisure space on the ground and lower ground floors together with car parking. Rigorous attention to sustainable design means that the building will achieve a BREEAM rating of ‘Excellent’. Design : ·· 73,000 sq ft of Grade A office space. ·· Anodised aluminium glazed external façade overlooking Belfast City Hall. ·· Efficient floor grid design 7m x 9m clear span. ·· Slab to slab height 3.7m. ·· External terraces on upper floors overlooking City Hall. ·· Design occupancy based on 1 person per 8 sq m. ·· Centralised core to facilitate a variety of space plan layouts.

Disclaimer

The information contained in this website is for general information purposes only. The information is sourced from third parties and is subject to change without notice. While we endeavour to keep the information up to date and correct, we make no representations or warranties of any kind, express or implied, about the completeness, accuracy, reliability, suitability or availability with respect to the website or the information, products, services, or related graphics contained on the website for any purpose. Any reliance you place on such information is therefore strictly at your own risk.

Similar properties

9 Lanyon Place

9 Lanyon Place, Belfast

To Let
Total Size (ft²)
148,900
Agent(s)
  • Lisney
  • McConnell Chartered Surveyors
Property Type:
Office
Property Status:
Ready for Fit-out
State Building

4th Floor, State Building, 2 Arthur Place, Belfast

To Let
Total Size (ft²)
3,948
Agent(s)
  • TDK Commercial Property Consultants
Property Type:
Office
Linenhall 1

The Linenhall, Linenhall Street, Belfast

To Let
Total Size (ft²)
73,000
Agent(s)
  • Killultagh
Property Type:
Office
Landmark 1

Landmark House, 5 Cromac Quay, Gasworks, Belfast

To Let
Total Size (ft²)
5,250
Agent(s)
  • Lisney
Property Type:
Office
9 Donegall St Place 1

First Floor, 9 Donegall Street Place, Belfast

To Let
Total Size (ft²)
445
Agent(s)
  • McConnell Chartered Surveyors
Property Type:
Office
Metro 1

Metro Building, 6-9 Donegall Square South, Belfast

To Let
Total Size (ft²)
5,138
Agent(s)
  • McConnell Chartered Surveyors
Property Type:
Office
8th floor Lanyon 1

8th Floor West Tower Lanyon Plaza, Lanyon Place, Belfast

To Let
Total Size (ft²)
5,705
Agent(s)
  • O'Connor Kennedy Turtle (Belfast)
Property Type:
Office
sessia house 1

Sessia House, First Floor 61-67 Donegall Street, Belfast

To Let
Total Size (ft²)
2,282
Agent(s)
  • McConnell Chartered Surveyors
Property Type:
Office
Paper Exchange 1

The Paper Exchange, 57-63 Chichester Street, Belfast

To Let
Total Size (ft²)
155,133
Agent(s)
  • Colliers International
  • McConnell Chartered Surveyors
Property Type:
Office
Property Status:
Ready for Fit-out
College House

College House, 3 Kelvin Avenue, Omagh

To Let
Total Size (ft²)
5,813
Agent(s)
  • O'Kane Brothers Estate Agents
Property Type:
Office
Property Status:
Ready for Fit-out