Audley Terrace, 27 Ballymoney Road, Ballymena, BT43 5BS

For Sale

54.867136588542, -6.2793839861436

Specifications

Full address:

Audley Terrace
27 Ballymoney Road
Ballymena
BT43 5BS
United Kingdom

Listed Price:
£195000
Total Size (ft²)
6,930
Total Size (m²)
644
Agent(s)
Property Type:
Office
Property Status:
Ready for Fit-out
Rates (per ft²):
£2.83
Service Charge (per ft²):
Contact agent for details

Description

Added
24/01/22

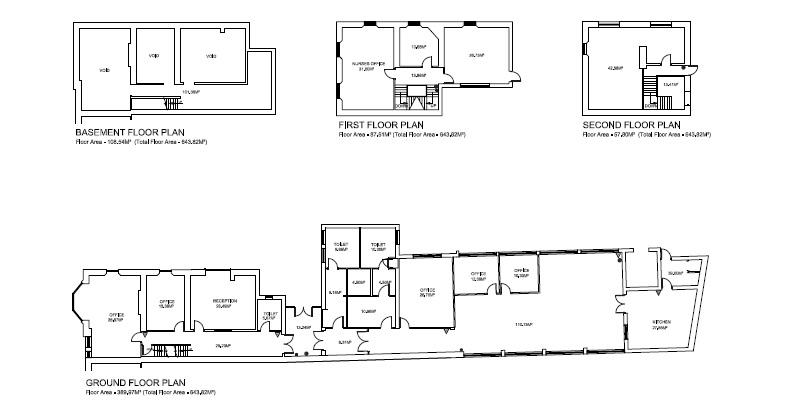
For Sale: Former Office/Medical Facility The subject property comprises a three storey over basement semi-detached office/medical facility of traditional masonry construction with feature stone walls under a pitched roof. The property is currently laid out to provide office accommodation on ground floor with reception, toilet and kitchen facilities. There is further office/storage accommodation across both the first and second floors. In terms of specification there is a mixture of both double and single glazed windows, carpet and lino covered concrete floors and fluorescent strip lighting. There is a boiler located to the rear of the property and is gas fired. There is car parking for approximately 4 cars to the front of the building. ACCOMMODATION Basement - 1,168 sq ft Ground Floor - 4,196 sq ft First Floor - 944 sq ft Second Floor - 622 sq ft Updated March 2020

Car Parking

Car parking for 4 cars to the front of the building

Disclaimer

The information contained in this website is for general information purposes only. The information is sourced from third parties and is subject to change without notice. While we endeavour to keep the information up to date and correct, we make no representations or warranties of any kind, express or implied, about the completeness, accuracy, reliability, suitability or availability with respect to the website or the information, products, services, or related graphics contained on the website for any purpose. Any reliance you place on such information is therefore strictly at your own risk.

Similar properties

One Bankmore

One Bankmore, 14 Dublin Road, Belfast

To Let
Total Size (ft²)
42,250
Agent(s)
  • Avison Young
  • Cushman & Wakefield
Property Type:
Office
Property Status:
Under Construction / Refurbishment
9 Lanyon Place

9 Lanyon Place, Belfast

To Let
Total Size (ft²)
148,900
Agent(s)
  • Lisney
  • McConnell Chartered Surveyors
Property Type:
Office
Property Status:
Ready for Fit-out
State Building

4th Floor, State Building, 2 Arthur Place, Belfast

To Let
Total Size (ft²)
3,948
Agent(s)
  • TDK Commercial Property Consultants
Property Type:
Office
Linenhall 1

The Linenhall, Linenhall Street, Belfast

To Let
Total Size (ft²)
73,000
Agent(s)
  • Killultagh
Property Type:
Office
Landmark 1

Landmark House, 5 Cromac Quay, Gasworks, Belfast

To Let
Total Size (ft²)
5,250
Agent(s)
  • Lisney
Property Type:
Office
9 Donegall St Place 1

First Floor, 9 Donegall Street Place, Belfast

To Let
Total Size (ft²)
445
Agent(s)
  • McConnell Chartered Surveyors
Property Type:
Office
Metro 1

Metro Building, 6-9 Donegall Square South, Belfast

To Let
Total Size (ft²)
5,138
Agent(s)
  • McConnell Chartered Surveyors
Property Type:
Office
8th floor Lanyon 1

8th Floor West Tower Lanyon Plaza, Lanyon Place, Belfast

To Let
Total Size (ft²)
5,705
Agent(s)
  • O'Connor Kennedy Turtle (Belfast)
Property Type:
Office
sessia house 1

Sessia House, First Floor 61-67 Donegall Street, Belfast

To Let
Total Size (ft²)
2,282
Agent(s)
  • McConnell Chartered Surveyors
Property Type:
Office
Paper Exchange 1

The Paper Exchange, 57-63 Chichester Street, Belfast

To Let
Total Size (ft²)
155,133
Agent(s)
  • Colliers International
  • McConnell Chartered Surveyors
Property Type:
Office
Property Status:
Ready for Fit-out