22 Mallusk Road, Mallusk

For Sale

54.674071214681, -5.9843373318488

Specifications

Full address:

22 Mallusk Road
Mallusk
BT36 4UB
United Kingdom

Listed Price:
Contact agent for details
Total Size (ft²)
6,804
Total Size (m²)
632
Agent(s)
Property Type:
Office
Property Status:
Ready for Fit-out
Rates (per ft²):
£4.28
Service Charge (per ft²):
Contact agent for details

Description

Added
08/02/22

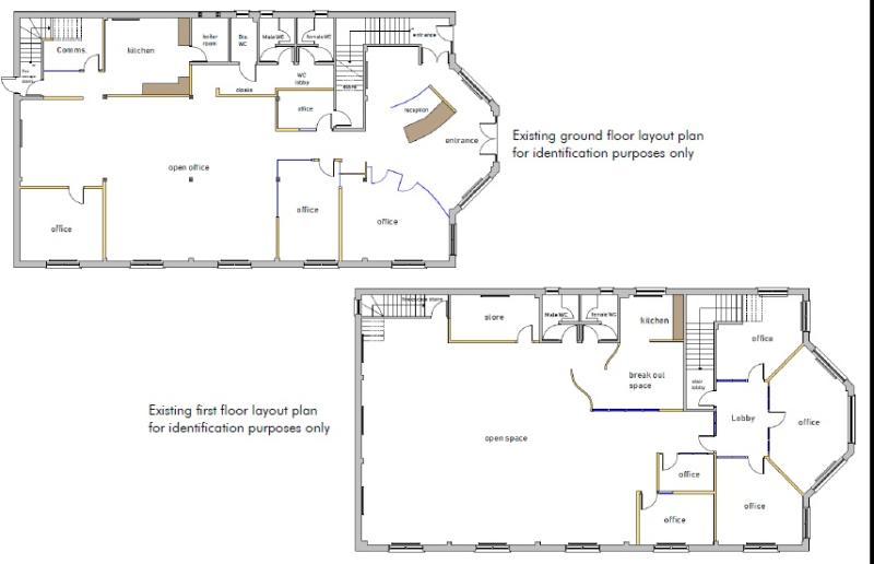
For Sale: Office Suites with private parking The subject accommodation is finished to a high standard to include an inviting reception area, carpeted floors, painted and plastered walls and suspended ceilings with recessed fluorescent lighting. The property possesses double glazed windows, Male and female WCs are located on both floors with a disabled assisted WC on the ground floor. The building is serviced with gas fired central heating and benefits from 12 dedicated car parking spaces. ACCOMMODATION Ground Floor - 3,402 sq ft First Floor - 3,402 sq ft Updated 23/10/19

Car Parking

12 Dedicated Car Parking Spaces

Disclaimer

The information contained in this website is for general information purposes only. The information is sourced from third parties and is subject to change without notice. While we endeavour to keep the information up to date and correct, we make no representations or warranties of any kind, express or implied, about the completeness, accuracy, reliability, suitability or availability with respect to the website or the information, products, services, or related graphics contained on the website for any purpose. Any reliance you place on such information is therefore strictly at your own risk.

Similar properties

One Bankmore

One Bankmore, 14 Dublin Road, Belfast

To Let
Total Size (ft²)
42,250
Agent(s)
  • Avison Young
  • Cushman & Wakefield
Property Type:
Office
Property Status:
Under Construction / Refurbishment
9 Lanyon Place

9 Lanyon Place, Belfast

To Let
Total Size (ft²)
148,900
Agent(s)
  • Lisney
  • McConnell Chartered Surveyors
Property Type:
Office
Property Status:
Ready for Fit-out
State Building

4th Floor, State Building, 2 Arthur Place, Belfast

To Let
Total Size (ft²)
3,948
Agent(s)
  • TDK Commercial Property Consultants
Property Type:
Office
Linenhall 1

The Linenhall, Linenhall Street, Belfast

To Let
Total Size (ft²)
73,000
Agent(s)
  • Killultagh
Property Type:
Office
Landmark 1

Landmark House, 5 Cromac Quay, Gasworks, Belfast

To Let
Total Size (ft²)
5,250
Agent(s)
  • Lisney
Property Type:
Office
9 Donegall St Place 1

First Floor, 9 Donegall Street Place, Belfast

To Let
Total Size (ft²)
445
Agent(s)
  • McConnell Chartered Surveyors
Property Type:
Office
Metro 1

Metro Building, 6-9 Donegall Square South, Belfast

To Let
Total Size (ft²)
5,138
Agent(s)
  • McConnell Chartered Surveyors
Property Type:
Office
8th floor Lanyon 1

8th Floor West Tower Lanyon Plaza, Lanyon Place, Belfast

To Let
Total Size (ft²)
5,705
Agent(s)
  • O'Connor Kennedy Turtle (Belfast)
Property Type:
Office
sessia house 1

Sessia House, First Floor 61-67 Donegall Street, Belfast

To Let
Total Size (ft²)
2,282
Agent(s)
  • McConnell Chartered Surveyors
Property Type:
Office
Paper Exchange 1

The Paper Exchange, 57-63 Chichester Street, Belfast

To Let
Total Size (ft²)
155,133
Agent(s)
  • Colliers International
  • McConnell Chartered Surveyors
Property Type:
Office
Property Status:
Ready for Fit-out