2 Meadowbank Lane, Trooperslane Industrial Estate, Carrickfergus

For Sale

54.706948480898, -5.838575673214

Specifications

Full address:

2 Meadowbank Lane
Trooperslane Industrial Estate
Carrickfergus
BT38 8YF
United Kingdom

Listed Price:
£2250000
Total Size (ft²)
62,800
Total Size (m²)
5,836
Site Area (Acres)
5.50
Site Area (Hect)
2.23
Property Type:
Industrial
Property Status:
Ready for Fit-out
Rates (per ft²):
£2.31
Service Charge (per ft²):
Contact agent for details

Description

Added
29/08/24

For Sale:  Manufacturing Facility Situated on a site of 5.5 acres.

 

The subject property comprises a state-of-the-art manufacturing facility, with ancillary office accommodation and ample onsite car parking (approx. 150 spaces), situated within one of the most desirable industrial locations within Northern Ireland.

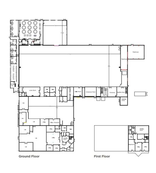
The property comprises a fully self-contained manufacturing facility of approximately 62,800 sq ft situated on a site of approximately 5.50 acres. The property provides for a substantial open plan, high quality manufacturing space, with supporting storage areas, 2 dock levellers, laboratories with ancillary office accommodation and staff facilities including a canteen and locker room.

Part of the rear of the building and along the southern wing was extended approximately 5 years ago to accommodate additional office accommodation and a new staff canteen which can accommodate approximately 80 staff members at any one time. The factory has a building employee capacity in the region of c.150 persons.

The property is fitted in its entirety with LED lighting and majority of the production / warehouse benefits from ESD flooring.

 

ACCOMMODATION

Office & Welfare  -  11,600 sq ft

Production  -  44,000 sq ft

QA Lab & Office  -  7,200 sq ft

Car Parking

150 car parking spaces approx.

Disclaimer

The information contained in this website is for general information purposes only. The information is sourced from third parties and is subject to change without notice. While we endeavour to keep the information up to date and correct, we make no representations or warranties of any kind, express or implied, about the completeness, accuracy, reliability, suitability or availability with respect to the website or the information, products, services, or related graphics contained on the website for any purpose. Any reliance you place on such information is therefore strictly at your own risk.

Similar properties

Bridgeview 1

Bridgeview Industrial Estate, 30 Low Road, Meigh, Newry

To Let
Total Size (ft²)
38,000
Property Type:
Industrial
Property Status:
Ready for Fit-out
Mallusk Drive 1

5 Mallusk Drive, Mallusk, Newtownabbey

For Sale
Total Size (ft²)
34,876
Agent(s)
  • O'Connor Kennedy Turtle (Belfast)
Property Type:
Industrial
Property Status:
Ready for Fit-out
Kilbegs 1

Unit C1, Kilbegs Business Park, Kilbegs Road, Antrim

To Let
Total Size (ft²)
3,865
Agent(s)
  • O'Connor Kennedy Turtle (Belfast)
Property Type:
Industrial
Property Status:
Ready for Fit-out
24 Enterprise Avenue

24 Enterprise Avenue, Belfast Road, Downpatrick

To Let
Site Area (Acres)
1.10
Total Size (ft²)
7,000
Agent(s)
  • Quinn Estate Agents
Property Type:
Industrial
Property Status:
Ready for Fit-out
Unit 17 Hulls Lane

Unit 17, Hulls Lane, Lisburn

To Let
Total Size (ft²)
6,196
Agent(s)
  • Lambert Smith Hampton
Property Type:
Industrial
Property Status:
Ready for Fit-out
17a Campsie Business Park

17a Campsie Business Park, McLean Road, Londonderry

To Let
Total Size (ft²)
6,100
Agent(s)
  • Robert Ferris Estate Agents
Property Type:
Industrial
Property Status:
Ready for Fit-out
4 Maydown Road

4 Maydown Road, Londonderry

To Let
Site Area (Acres)
4.00
Total Size (ft²)
44,286
Agent(s)
  • O'Connor Kennedy Turtle (Belfast)
Property Type:
Industrial
Property Status:
Ready for Fit-out
Unit 4 BBP 1

Unit 4 Ballinderry Business Park, 58 Ballinderry Road, Lisburn

To Let
Total Size (ft²)
6,951
Agent(s)
  • Lisney
Property Type:
Industrial
Property Status:
Ready for Fit-out
Ballyloran 1

Ballyloran Industrial Estate, Ballyboley Road, Larne

For Sale
Site Area (Acres)
2.90
Total Size (ft²)
26,161
Agent(s)
  • O'Connor Kennedy Turtle (Belfast)
Property Type:
Industrial
Property Status:
Ready for Fit-out
2 Rathdown Rd 1

Unit 4, 2 Rathdown Road, Lisburn

To Let
Total Size (ft²)
4,830
Agent(s)
  • Lambert Smith Hampton
Property Type:
Industrial